产品概述
本机组是一种可以同时完成干燥和造粒的装置。按工艺要求可以调节料液泵的压力、流量、喷孔的大小,得到所需的按一定大小比例的球形颗粒。
本机组工作过程为料液通过隔膜泵高压输入,喷出雾状液滴,然后同热空气并流下降,大部分粉粒由塔底排料口收集,废气及其微小粉末经旋风分离器分离,废气由抽风机排出,粉末由设在旋风分离器下端的授粉筒收集,风机出口还可装备二级除尘装置,回收率在96-98%以上。
本机组与物料接触部分的塔体、管道、分离器的材料,均采用SUS304制作。在塔体内部与外壳之间有足够的保湿层,填充材料为超细玻璃棉,塔体设有观察门、视镜、光源及控制仪表,由电器控制操作台控制和显示。
产品应用
制药工业:片剂、冲剂、胶囊剂颗粒;低糖、无糖的中成药颗粒; 食品:可可、咖啡、奶粉、颗粒果汁、调味品等; 其它行业:农药、饲料、化肥、颜料、染料等。
产品特点
1、干燥速度快,料液经雾化后表面积大大增加,在热风气流中,瞬间就可蒸发95%-98%的水份,完成干燥的时间仅需要十几秒到数十秒种,特别适用于热敏性物料的干燥。
2、所有产品为球状颗粒,粒度均匀,流动性好,溶解性好,产品纯度高,质量好。
3、使用范围广,根据物料的特性,可以用热风干燥, 也可以用冷风造粒,对物料的适应性强。
4、操作简单稳定,控制方便,容易实现自动化作业。
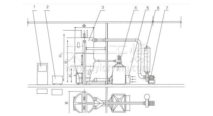
结构示意图
1、控制箱 2、静脉注射小车 3、主机箱 4、换热器柜 5、亚效率吸附器 6、消音器 7、引排风机
技术参数
|
项 目
|
单位/机型
|
PGL-3B
|
PGL-5B
|
PGL-10B
|
PGL-20B
|
PGL-30B
|
PGL-80B
|
PGL-120B
|
|
流浸膏
|
min
|
kg/h
|
2
|
4
|
5
|
10
|
20
|
60
|
100
|
|
max
|
kg/h
|
4
|
6
|
15
|
30
|
40
|
100
|
140
|
|
沸腾能力
|
min
|
kg/批
|
2
|
6
|
10
|
30
|
60
|
100
|
150
|
|
max
|
kg/批
|
6
|
15
|
30
|
80
|
160
|
250
|
450
|
|
液体比重
|
kg/L
|
≤1.30
|
|
原料容器量
|
L
|
26
|
50
|
220
|
420
|
620
|
980
|
1600
|
|
容器直径
|
mm
|
400
|
550
|
770
|
1000
|
1200
|
1400
|
1600
|
|
引风机功率
|
kw
|
3.0
|
5.5
|
7.5
|
11
|
15
|
18.5
|
30
|
|
辅风机功率
|
kw
|
0.35
|
0.75
|
0.75
|
1.20
|
2.20
|
2.20
|
4
|
|
蒸汽
|
耗量
|
kg/h
|
40
|
70
|
99
|
210
|
300
|
366
|
465
|
|
压力
|
Mpa
|
0.40-0.60
|
|
电热型功率
|
kw
|
9
|
15
|
21
|
25.5
|
51.5
|
60
|
75
|
|
压缩空气
|
耗量
|
m3/min
|
0.5
|
0.8
|
0.8
|
0.9
|
1.1
|
1.3
|
1.8
|
|
压力
|
Mpa
|
0.40-0.60
|
|
作业温度
|
°C
|
室温-160°C自动调节
|
|
产品水份
|
%
|
≥0.2
|
|
物料收得率
|
%
|
≥99
|
|
设备噪音
|
dB
|
<77
|
|
主机尺寸
|
Φ
|
mm
|
400
|
550
|
770
|
1000
|
1200
|
1400
|
1600
|
|
H1
|
mm
|
940
|
1050
|
1070
|
1220
|
1570
|
1590
|
1690
|
|
H2
|
mm
|
1900
|
2360
|
2680
|
3150
|
3630
|
4120
|
5050
|
|
H3
|
mm
|
2050
|
2590
|
3020
|
3600
|
4180
|
4770
|
5800
|
|
B
|
mm
|
740
|
890
|
1110
|
1420
|
1620
|
1820
|
2100
|
设计例:需要每批整理流浸膏量 I=120kg(含固量为30%)、种子视频量II=60kg,可由I、II得出结论本体论样品量 M=mI+mII=120kgx30%+60kg=96kg,事业时间间隔T=120kg/30kg/h=4h,的技术主要参数栏中能查出热闹量为的标准受力範圍,故以每次完成任务2个批,使用的PGL-30型相对宜于。